| Byggsätt: Trä | Antal rum: 24 st | |
| Byggår: |
Rivning år: |
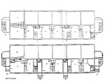
Göteborgshuset också kallat Cubahuset. Här fanns i slutet på 1800 talet en en lägenhet, ovanför en smal trappa, i ena änden av Göteborgshuset, där Forsbäcks- och Surteungarna trängdes om varandra, i en för skolarbetet mindre tjänlig atmosfär. Man gick alltså i skolan här då man inte jobbade på glasbruket. Det var ju så att på den tiden så kombinerade man arbete i hyttan med skola och utbildning.
Källa Glasblåsare Aston Sandström
Följande familjer bodde i bostadshuset Göteborgshuset omkring åren 1920-1930
Ingång från västra Gavel
våning 1 (Lägenhet 7) Reinold-Kristin Persson (Barn : Erik, Olga, Axel, Fillip, Ebba, Milda)
våning 2 (Lägenhet 14) Max-Magdalena Nolberg (Barn: Emil, Algot, Maja Lisa.)
våning 2 Kristina Nilsson
Ingång 1 norrsidan
våning 1 till höger (Lägenhet 6) Henrik -Olivia Nordin (Barn: Erik, Sigfrid, Hildur, Hjalmar Jenny.)
våning 1 till vänster (Lägenhet 5) Bemt-Leontina Persson (Barn: Sigfrid, Hulda, Gunhild, Evelyn, Miriam, Lilly, Josef, Benjamin, Johannes)
våning 2 till höger (Lägenhet 13) Seth-Hulda Elfström (Barn:Viola, Lissy, Elsa, Raimon, Gustav, Jean…)
våning 2 till vänster (Lägenhet 12) Axel-Emelia Roos (Barn:Erik, Valla, Reine, Emelia, Svea.)
Ingång 2 norrsidan
våning 1 till höger (Lägenhet 4) Leo-Ester Kraft (Barn:Torborg,Harald, Hubert,Gunnar,Karl,Roland,Vera, Edit.)
våning 1 till vänster (Lägenhet 3) Wentzel::Hulda Svensson (Barn:Herbert, Lambert, Vilhelm, Ragnvald)
våning 2 till höger (Lägenhet 11) Axel-Hulda Hagström (Barn: Emmy, John, Runo, Helge, Hemy, Marine, Ivan)
våning 2 till vänster (Lägenhet 10) Runo-Elsa Pihl (Barn: Lennart.)
Ingång Östra Gavel
2 st. enkelrum på varje våning
Våning 1 (Lägenhet 1) Ingrid Eriksson (Lägenhet 2) Josefina Andersson
Våning 2 (Lägenhet 8) Alida Johansson (Lägenhet 9) Signe blomström.





